huisvesting TU Delft Process Technology Institute

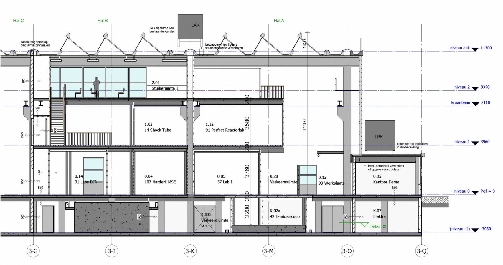
In 2014 is in het kader van de Herijkingsagenda van de TU Delft de huisvesting voor het TU Delft Process Technology Institute gerealiseerd. In deze nieuwe organisatie zijn diverse leerstoelen binnen de afdelingen van zowel de faculteit 3mE als de faculteit TNW ondergebracht.  De huisvesting is gerealiseerd binnen de bestaande hal 3 van de faculteit 3mE, een grote industriële hal met sheddaken, en in de aangrenzende kantoorvleugel en een recente uitbreiding aan de Leeghwaterstraat. De totale herinrichting beslaat ca. 3600 m2; circa 2.800 m2 labruimtes, 400 m2 kantoor- en vergaderruimtes, 120 m2 studie- en onderwijsruimtes, en 280 m2 algemene voorzieningen.

In de nieuwe huisvesting profileert het TU Delft Process Technology Institute zich op het gebied van 3 toepassingsgebieden rondom procestechnologie en stromingsleer. Het onderzoek binnen deze gebieden heeft veelal een duurzame kant: het gaat bijvoorbeeld om energiezuinige productieprocessen, afvalverwerking, waterzuivering, en alternatieven voor schaarse grondstoffen. Onderwerpen die niet alleen belangrijk zijn voor de industrie, maar voor de hele samenleving. In de loop der jaren had de organisatie op verschillende plekken binnen de TU een scala aan proefopstellingen verzameld, waarvan eerst uitgezocht moest worden welke nog relevant, toekomstbestendig, veelbelovend, of vergeten en mislukt waren. Een bijzonder complexe puzzel, waarbij de nieuwe huisvesting ook nog eens ruimte moet bieden voor de experimenten van de toekomst. Met een heldere organisatie van ruimtes en installatietechniek, met oog voor brandveiligheid, en met veel geduld is de hele operatie tot een succes gebracht.  De nieuwe huisvesting bevordert de samenwerking tussen de betrokken afdelingen, en zorgt ervoor dat het onderzoek ook zichtbaar is voor de hele gemeenschap. De verschillende afdelingen maken gebruik van gedeelde onderzoeksfaciliteiten, een gemeenschappelijk macrolab, waar grote proefopstellingen kunnen worden gebouwd, om de haalbaarheid van industriële toepassingen te testen. Kantoor- en vergaderruimtes zijn geclusterd in de aangrenzende vleugels, die een directe relatie hebben met de onderzoeksruimte. Hier hebben de afdelingen hun eigen werkplekconcept gerealiseerd. Ook is er een aantal studentenwerkplekken gecreëerd binnen de labomgeving, het zogeheten ‘kraaiennest’.

De bouwkundige ingrepen zijn ruim binnen het gestelde budget gerealiseerd. De bijzondere ruimtelijkheid van de oorspronkelijke industriehal geeft het plan extra waarde. Bij verbouwingen binnen een bestaand complex blijkt de impact van het aanpassen van de installaties niet te onderschatten, zowel ruimtelijk als financieel. Dat geldt zeker voor een labomgeving als deze. Veel aandacht is daarom uitgegaan naar het integreren van de installaties in het bouwkundig ontwerp.

Het instituut heeft met de nieuwe huisvesting een herkenbare, transparante en bovenal doelmatige leer- en werkomgeving gekregen. Het gebouw draagt bij aan de aantrekkingskracht van het instituut op studenten. In het nieuwe instituut werken ca. 80 medewerkers en 35 studenten. Daarnaast zijn ca. 100 PhD studenten werkzaam binnen het instituut. 

Status gerealiseerd november 2014
Architecten Krijn Tabbers
Opdrachtgever(s) TU Delft, FMVG
Gerelateerd

De nieuwe faculteit van de Technische Universiteit Delft "OCP" herbergt de studierichtingen Werktuigbouwkunde, Maritieme Techniek en Industrieel Ontwerpen. Terwijl de genoemde afdelingen in gebruik bleven, moest een intensieve verbouwing worden doorgevoerd om te komen tot een hedendaags, logisch en efficiënt functionerend universiteitsgebouw. Essentieel onderdeel van deze opgave was het realiseren van een herkenbaar eigen gebouw voor de faculteit "Industrieel Ontwerpen" op de bestaande locatie, met een positieve uitstraling naar de TU-wijk. Het interieur was integraal onderdeel van het ontwerp. Een zebrapad voert dwars door de inspirerende hal van de entreebalie naar het hoofdtrappenhuis.
Het project is uitgevoerd in samenwerking met LIAG architekten en bouwadviseurs.

De brandweerkazerne van circa 4.500 m2 ligt direct naast een uitgestrekt natuurgebied tussen Amstelveen en Ouderkerk aan de Amstel met prachtige rietlanden en heeft een directe verbinding naar de A9.

Het gebouw staat in het water en heeft een carrévormige onderbouw rond een binnenplaats. Op deze binnenplaats zijn de remises, werkplaatsen en oefenruimten georiënteerd. De binnenplaats wordt ook als oefenplek gebruikt. De carrévorm beschermt de omliggende bebouwing tegen het geluid van de brandweeroefeningen. Bovenop de onderbouw ligt een volume van twee bouwlagen dat aan beide zijden 15 m uitkraagt. In deze lagen bevinden zich de kantoren, slaapkamers, kantine, woonkamer en de sportzaal. De metalen gevelafwerking heeft een sterke horizontale belijning die verwijst naar het platte landschap. Aan de voorzijde zijn roosters op de gevel gemonteerd die dienst doen als zonwering en als glazenwasbalkon.

Het gebouw is energiezuinig door hoogwaardige isolatie en een zeer efficiënte installatie. Verwarming geschiedt door stadsverwarming, koeling met koud water uit de bodem door middel van een monobroninstallatie. De ventilatieinstallatie is voorzien van een warmtewiel en zuigt zo koel mogelijke lucht aan onder het grote overstek boven de waterpartij.

In de oude werfkelders op de kruising van de Oude en de Nieuwe Rijn in het centrum van Leiden bevindt zich het café restaurant "Annie's". In opdracht van de eigenaar van het restaurant hebben we een gekromd drijvend terras ontworpen.

Sinds mei 2014 kunnen bezoekers van begraafplaats Rhijnhof terecht in het nieuwe koffie/theehuis bij de ingang van het terrein. Naast wachtruimte, cafetaria heeft het gebouw een vergaderruimte, een informatiedesk en sanitaire voorzieningen. Het gebouw is subtiel op de locatie ingepast. Van binnenuit heeft men zicht op de begraafplaats. Aan de zuidkant is een terras gesitueerd, dat wordt begrensd door een bestaande pergola. De dakrand refereert aan het naastgelegen poortgebouw (ook door VVKH ontworpen). De gevel is gemaakt van een speciaal geëxtrudeerd aluminium profiel met een bijzondere coating. De inrichting is integraal in het ontwerp meegenomen.