Dijkwoningen in de Stelt Zuid, Nijmegen

De nieuwe woonwijk Stelt-Zuid ligt tussen het oude dorp Lent en de rivier de Waal.
Vier combinaties van architectenbureau en ontwikkelaar realiseren hier deelprojecten met in totaal 269 woningen en appartementen. Een bloesem- en fruitboomgaard vormt het hart van de nieuwe woonwijk. Aan de oude stuwwal van de Waal staan dijkwoningen. De tuinen van deze woningen lopen over in het struingebied van de rivier.

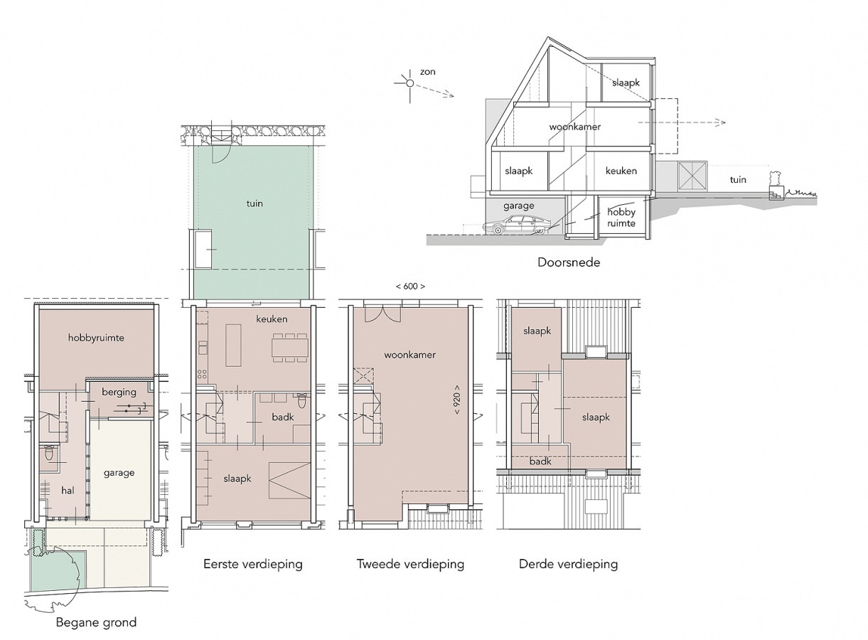
In opdracht van BPD hebben we het ontwerp gemaakt voor 12 dijkwoningen in het projectdeel Steltse Dijkgaarden.
De woningen van ca. 190 m2 hebben alle vanaf de woonverdieping een fantastisch uitzicht over de Waal en de stad Nijmegen. Onderin de woningen wordt geparkeerd, op de eerste verdieping zijn de hoofdslaapkamer, leefkeuken en achtertuin aan de dijk gesitueerd, op de tweede verdieping de living met zicht op de Waal en de derde verdieping kan als slaap- en/of werkruimte worden ingericht. De woningen zijn gasloos en het dak wordt voorzien van zonnepanelen.

De hoogteverschillen van het dijkgebied komen terug in de tuinen en de overgang naar het struingebied langs de dijk. Vanaf het terras van de woningen loop je zo richting de oevers van de Waal.

 

Status gerealiseerd juni 2022
Architecten Ronald Knappers, Krijn Tabbers
Opdrachtgever(s) BPD
Gerelateerd

Voor de locatie Zes Rozen te Spijkenisse heeft VVKH in eerste instantie een structuurvisie ontwikkeld. Er zijn twee scenario’s onderzocht: alleen woningen en woningen in combinatie met zorgeenheden. Het ontwerp omvat uiteindelijk 5 zorg-groepswoningen en 164 koop/huurwoningen, verdeeld over 6 bouwblokken. Daarnaast is er een ondergrondse parkeergarage en commerciële ruimte. De woningen vertonen een sterke variëteit in grootte en karakter, de zorgwoningen zijn zoveel mogelijk als “gewone” woningen in het plan opgenomen.

 

fotografie: Roos Aldershoff ©

Ruim 300 gelijkvormige portieketageflats hebben plaats gemaakt voor 315 levensloopbestendige woningen, variërend van eengezinswoningen tot appartementen in een toren van 14 lagen. In het wooncomplex zijn verspreid over alle drie de woonblokken diverse zorg- en maatschappelijke voorzieningen opgenomen. Zo zijn er onder andere een fietsenwerkplaats en horeca bemand door werknemers met een verstandelijke beperking. Daarnaast zijn er zorgwoningen voor ouderen en verstandelijk en lichamelijk gehandicapten.  De zorgwoningen worden door verschillende zorginstellingen aangeboden. Deze ondersteunen de bewoners en hebben tevens het beheer over de maatschappelijke voorzieningen.

Bewoners parkeren onder de binnentuinen van de gesloten bouwblokken in twee parkeergarages. Geluidwerende maatregelen in de woningen langs het spoor en de uitvalswegen beperken de overlast van verkeer. Richting de straat en het spoor zijn er met de toegepaste woningtypologieën alleen maar voorkanten.

Het woonhuis uit het begin van de 20e eeuw was oorspronkelijk de dienstwoning van het naastgelegen hoofdhuis “Malgre tout”. Hoofdhuis en dienstwoning worden gezien als voorbeeld van de ontwikkeling van buitenplaatsen in de gemeente. Als ensemble zijn de gebouwen en de omliggende tuinen van grote cultuurhistorische waarde. Het ensemble heeft de status Rijksmonument. De zorgvuldig gedetailleerde woning is opgetrokken in rode baksteen onder een rietgedekt wolfsdak. De dienstwoning omvatte oorspronkelijk een garage, paardenstallen en een woning voor de chauffeur.

In 2018 is een ontwerp gemaakt voor restauratie en modernisering van de dienstwoning en uitbreiding met een moderne uitbouw. In de uitbouw wordt een grote woonkamer en keuken gerealiseerd. Aan de uitbouw komt een veranda. Woonkamer en veranda bieden uitzicht op een prachtige Hortensia tuin. De uitbouw is aan de zijde van de tuin helemaal transparant. Aan de andere zijde wordt de uitbouw omarmd door een opengewerkt gemetselde muur. Naar de randen toe wordt de muur transparanter. Door de toepassing van een warmtepomp installatie met een bron, hoogwaardige isolatie, en door het dak van de uitbouw volledig vol te leggen met zonnepanelen is de dienstwoning straks volledig energie neutraal.

De Rijneke Boulevard in Zoeterwoude is een druk bezocht winkelgebied, met een gedateerd uiterlijk. Het complex staat met de rug naar de Rijn. We hebben een visie ontwikkeld om de boulevard fasegewijs te renoveren en uit te breiden. Tevens wordt de Rijn meer bij het winkelgebied betrokken door havens te maken.

De eerste fase start aan de westzijde van het complex. In deze fase is het eerste gebouw reeds gerenoveerd (gerealiseerd 2016) en is in januari 2018 gestart met de uitbreiding van 6.000 m2 winkeloppervlakte. Het winkelgebied wordt georganiseerd rondom de oude haven van de Heineken fabriek, daar waar vroeger de hop werd gelost.